Z960Y高温高压电站闸阀
- 销售:
- 销售:
- 传真:
详情介绍
- 产品介绍
- 服务承诺
- 订货流程
Z961Y高温高压电站闸阀应用范围:磅级电站闸阀适用于Class1500~3500Lb、工作温度-29~570℃的石油、化工、火力电站等各种工况的管路上切断或接通介质。适用介质为:水、油品、导热油、蒸汽等。闸板与阀座密封面采用司太立-stellite钴基硬质合堆焊而成,耐磨、耐高温、耐腐蚀、抗擦伤性能好。
主要技术参数
产品型号 | 试验压力(MPa) | 工作压力(MPa) | 工作温度(℃) | 适用介质 | ||
强度试验 | 密封试验/上密封实验 | |||||
Z961Y-250 | 25 | 37.5 | 27.5 | - | ≤425 | 水、蒸汽 |
Z961Y-320 | 32 | 48.0 | 36.0 | - | ≤425 | |
Z961Y-P54100 | - | 30.0 | 22.0 | P5410 | ≤540 | 蒸汽 |
Z961Y-P54170 | - | 48.0 | 36.0 | P5417 | ≤540 | |
主要零件材质
零件名称 | 材料牌号Material designation | ||
阀体 | WCB | WC6 | WC9 |
阀板 | WCB | WC6 | WC9 |
阀盖 | 25 | 12Cr1Mo1VA | |
阀杆 | 1Cr17Ni2 | 20Cr1Mo1VA | |
阀座 | 25 | 12Cr1Mo1VA | |
密封环 | S软钢(增强柔性石墨) | S软钢 | F软钢 |
填料 | 增强柔性石墨 | ||
支架 | WCB | WCB或WC6 | |
阀杆螺母 | 45(ZCuZn25A16Fe3Mn3) | ||
四开环 | 1Cr13 | 20Cr1MoVA | |

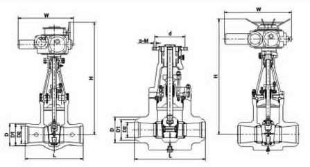
主要外形及连接尺寸
公称通径 | 主要外形尺寸和连接尺寸(mm) | 电动装置 | 重量(kg) | ||||
d | L | H | L1 | L2 | |||
Z960Y-250 | |||||||
100 | 84 | 406 | 1164 | 437 | 277 | DZW45 | 234 |
125 | 100 | 483 | 1402 | 437 | 277 | DZW60 | 343 |
175 | 158 | 711 | 1650 | 554 | 309 | DZW180 | 638 |
225 | 200 | 864 | 1650 | 554 | 309 | DZW180 | 654 |
300 | 280 | 1067 | 2106 | 764 | 398 | DZW350 | 1973 |
Z960Y-320 | |||||||
100 | 96 | 533 | 1236 | 437 | 277 | DZW60 | 291 |
125 | 118 | 610 | 1302 | 437 | 277 | DZW60 | 315 |
150 | 148 | 762 | 1403 | 526 | 283 | DZW90 | 672 |
175 | 148 | 762 | 1650 | 554 | 309 | DZW180 | 684 |
225 | 222 | 1041 | 1650 | 554 | 309 | DZW180 | 696 |
Z960Y-P54100V | |||||||
175 | 148 | 762 | 1650 | 554 | 309 | DZW180 | 683 |
225 | 222 | 1041 | 1650 | 554 | 309 | DZW180 | 704 |
250 | 222 | 1041 | 1795 | 554 | 309 | DZW180 | 1214 |
300 | 294 | 1245 | 2080 | 554 | 309 | DZW250 | 2125 |
Z960Y-P54170V | |||||||
125 | 98 | 630 | 1230 | 437 | 277 | DZW60 | 312 |
225 | 186 | 1060 | 1680 | 554 | 309 | DZW180 | 1401 |
300 | 278 | 1397 | 2265 | 764 | DZW500 | 2834 | |
325 | 310 | 1448 | 2265 | 690 | 398 | DZW500 | 2632 |
350 | 338 | 1550 | 2536 | 715 | DZWC-4 | ||
良好的品质、优良的服务 KY.COM-开元(中国)为你创造更多价值!
“KY.COM-开元(中国)”的期望,不断提升服务质量,精益求精,“真诚的服务”是“KY.COM-开元(中国)”永恒的主题。“KY.COM-开元(中国)”严格按照IS09001-2000 质量体系认证要求,质量严格把关, 责任到人,确保生产、销售、服务的健康运行。加强与用户沟通,竭诚为广大客户提供优良产品,至善至美服务。特此我厂做出以下承诺:
产品标准:
产品严格按照中国GB、HG 标准和美国API等标准设计、制造、验收。密封面硬度达到国家规定要求,宽度超过国家标准。
售前服务:
产品介绍,技术交流,非标产品设计,疑难解答。
售中服务:
守信合同,保证及时供货,随时保持与客户联系。 对特殊或复制的产品,我厂安排技术人员对用户进行产品使用、故障排除
售后服务:
1、“KY.COM-开元(中国)”牌产品品质期为自出厂起12个月,实行“三包”服务(包退、包换、保修)。
2、产品在使用中我厂定期组织技术、质检人员进行访问,征询用户对产品质量、 使用状况、改进意见等方面的反馈, 以便进一步提高产品质量。
3、对用户投诉质量问题,快速作出反应,售后服务人员在24-36小时(省外48小时)赶赴现场。
4、对售后服务,要求用户填写服务后的质量反馈信息表,并作出鉴定意见,以便提高KY.COM-开元(中国)的服务质量。
1、客户如对产品有特殊要求,须在订货合同中提供以下说明:
a、结构长度;
b、连接形式;
c、公称直径、全通径、缩径、管道尺寸;
d、运行介质及温度、压力范围;
e、试验、检验标准及其他要求
2、本厂可根据客户特定要求配置各类驱动装置。
3、如由客户提供确定的阀门类型和型号时,客户应正确说明其型号的含义和要求,在供需双方理解一致的条件下签订合同。
4、期货、订货的客户请先来电函详细告诉所需的阀门型号、规格、数量以及交货时间、地点,并按总的30%预定金或全额货款及时汇入我厂帐户,其余货款待发货前汇入,以便及时安排发货。
订单流程:
1、客户采购清单传真至,或来电咨询
2、收到客户采购清单,为客户提供阀门型号选型与报价(价格清单)。
3、具体商定:交货期、特殊要求等事宜。
订货须知:
1、客户如对产品有特殊要求,须在订货合同中提供以下说明:
|
|||||
|
|||||
2、本厂可根据客户特定要求配置各类驱动装置。
|
|||||
3、如由客户提供确定的阀门类型和型号时,客户应正确说明其型号的含义和要求,在供需双方理解一致的条件下签订合同。
|
|||||
4、期货、订货的客户请先来电函详细告诉所需的阀门型号、规格、数量以及交货时间、地点,并按总的30%预定金或全额货款及时汇入我厂账户, 其余货款待发货前汇入,以便及时安排发货。
|
售中服务:
守信合同,保证及时供货,随时保持与客户联系。
对特殊或复制的产品,我厂安排技术人员对用户进行产品使用、故障排除
售后服务:
1、“KY.COM-开元(中国)”产品品质期为自出厂起12个月,实行“三包”服务(包退、包换、保修)。
2、产品在使用中我厂定期组织技术、质检人员进行访问,征询用户对产品质量、使用状况、改进意见等方面的反馈,
以便进一步提高产品质量。
3、对用户投诉质量问题,快速作出反应,售后服务人员在24-36小时(省外48小时)赶赴现场。
4、对售后服务,要求用户填写服务后的质量反馈信息表,并作出鉴定意见,以便提高“KY.COM-开元(中国)”的服务质量。
声明 |
|